電磁振動給料機
概述
電磁振動給料機可以將煤炭或其它散狀物料從料倉或漏斗中均勻連續或定量地給到受料設備中去,比如帶式輸送機,斗式提升機,篩分設備,破碎機等。
特點
電磁振動給料機噪音降低,壽命延長,可靠性提高,同時還可以與計算機實現聯機,實現自動化智能給料,配備電源控制箱,可以無級調節給料量,配備自動穩幅控制箱,可不受電源電壓的波動,而使機器振幅穩定。
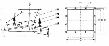
電磁振動給料機外形尺寸圖

參數
| 性 能 | 單 位 | 型 號 | ||||
| ZG-20 | ZG-50 | ZG-100 | ZG-200 | ZG-300 | ||
| 額定給料量 | t/h | 20 | 50 | 100 | 200 | 300 |
| 入料粒度 | mm | <75 | <100 | <150 | <200 | <300 |
| 電源電壓 | V | 200 | 380 | |||
| 電源頻率 | Hz | 50 | ||||
| 電 液 | A | ≤3.8 | ≤7 | ≤10.6 | ≤13.3 | ≤20 |
| 控制原理 | 半波整流 | |||||
| 振動頻率 | min-1 | 3000 | ||||
| 氣 隙 | mm | 1.8-2 | ||||
| 最大振幅 | mm | 1.75 | 1.5 | |||
| 整機重量 | kg | 266 | 497 | 898 | 1750 | 2300 |
| 代 號 | A×A | B×B | C×C | D1 | D2 | D3 | G | L |
| ZG-20 | 480 | 435 | 380 | ф325 | ф385 | ф425 | 800 | 1470 |
| ZG-50 | 595 | 540 | 480 | ф426 | ф490 | ф528 | 1100 | 2000 |
| ZG-100 | 845 | 800 | 720 | ф630 | ф700 | ф745 | 1250 | 2400 |
| 代 號 | H | n1-ф1 | n2-ф2 | F1 | F2 | 減振器開檔 | |
| 前 | 后 | ||||||
| ZG-20 | 900 | 12-14 | 12-14 | 535 | 310 | 518 | 518 |
| ZG-50 | 1100 | 12-18 | 12-18 | 560 | 538 | 640 | 620 |
| ZG-100 | 1415 | 16-18 | 16-18 | 470 | 580 | 930 | 750 |
| 代 號 | A1 | A2 | A3 | B1 | B2 | B3 | n-ф |
| ZG-200 | 1130 | 1032 | 930 | 1180 | 270×4-1080 | 980 | 16-18 |
| ZG-300 | 1140 | 1060 | 960 | 1640 | 260×6-1560 | 1460 | 20-18 |
| 代號 | H1 | H | L | F1 | F2 | 減振器開檔 | |
| 前 | 后 | ||||||
| ZG-200 | 1050 | 1350 | 2450 | 880 | 510 | 1197 | 720 |
| ZG-300 | 1060 | 1490 | 2650 | 850 | 680 | 1677 | 840 |
用途
電磁振動給料機用以把塊狀、顆粒狀及粉狀物料從貯料倉或漏斗中均勻連續或定量地給到磨煤機、分選機械、包裝機械等受料裝置中,廣泛用于電力、煤炭、礦山、建材、化工、冶金等各部門中。
相關產品
-
DMA系列振動給料機
DMA系列振動給料機是我廠引進比利時TOLEDO生產技術,結合我國國情設計研制的新型給料設備。該產品給料時物料運行按拋物線軌跡前進,對結料槽體磨損小。
立即了解?DMA系列振動給料機
-
ZG系列電磁振動給煤機
ZG系列電磁振動給煤機可以將煤炭或其它散狀物料從料倉或漏斗中均勻連續或定量地給到受料設備中去(如帶式輸送機,斗式提升機,篩分設備,破碎機等)。
立即了解?ZG系列電磁振動給煤機
-
GZxG系列管式電磁振動給料機
GZxG系列管式電磁振動輸送機廣泛應用于冶金、煤炭、化工、建材等行業中,把小塊狀、顆粒狀、粉狀等散體物料連續均勻地輸送到下一設備。
立即了解?GZxG系列管式電磁振動給料機
-
GZ系列電磁振動給料機
GZ系列電磁振動給料機在生產流程中,用于把塊狀、顆粒狀、粉狀物料從貯料倉或漏斗中定量、均勻、連續地給到受料裝置中去。
立即了解?GZ系列電磁振動給料機
-
GZV系列微型振動給料機
GZV系列微型振動給料機與其它形式給料機相比具有體積小、選題輕、結構簡單、耗電省、可無級調節給料量等特點,GZV系列微型電磁振動給料機配套普通控制箱可實現手動無級調節,如配套自動控制箱,可實現手動、自動調節。
立即了解?GZV系列微型振動給料機
-
GZG自同步慣性振動給料機
GZG、GZGF自同步慣性振動給料機是一種經濟技術指標先進的給料設備,用于把塊狀、顆粒狀及粉狀物料從貯料倉或漏斗中均勻連續或定量地給到受料裝置中去。配套反接制動控制箱,可使給料機在短時間內迅速停機,同時還具有過流、過壓、斷相保護作用。
立即了解?GZG自同步慣性振動給料機
-
GZGB、GZGBF系列自同步慣性振動給料機
本系列給料機是GZG、GZGF系列自同步慣性振動給料機的改型設計。
立即了解?GZGB、GZGBF系列自同步慣性振動給料機
-
TZG振動給料機
TZG系列振動給料機采用兩臺振動電機做為激振源,在過共振狀態下工作,與電磁振動給料機和擺式給料機比較,具有結構簡單、重量輕、噪聲低、工作可靠、給料能力大、安裝維護方便等優點。
立即了解?TZG振動給料機
動態
-
20
2021-10
快看!電機振動給料機的結構優勢及維護要點
電機振動給料機為慣性振動給料的一種,采用振動電機作為激振源帶動料斗工作,具有結構簡單、處理量大、噪音小、能耗低、維修成本低等特點。
-
11
2021-05
振動給料機在啟動操作前后的注意事項講解
振動給料機又叫震動給料機、振動給料器、振動喂料機,是由振動機架、振動體、振動電機、激振器、彈簧(彈簧分為激振彈簧和支撐彈簧)等組成。
-
11
2021-03
振動給料機出現不給料或給料量不足的故障,怎么辦
振動給料機在生產中可以將塊狀或顆粒狀的物料均勻、連續的送至受料設備,是一種常用的給料設備。振動給料機出現不給料或給料量不足的故障現象,該如何處理?來了解一下吧:1、故障原因:料倉負荷擠壓給料機料槽,導致彈簧板和連接叉發生疲勞損傷或斷裂;進料過多,造..
-
05
2020-12
慣性振動給料機在試運轉時要注意的事項
慣性振動輸送機是一種無牽引構件的連續輸送機械,主要由承載構件、彈性元件及激振器等組成。慣性振動輸送機具有結構簡單、性能穩定、安裝方便、工作可靠等特點。慣性振動輸送機試運轉前,電氣系統、安全連聯鎖裝置、制動裝置、操作控制系統和信號系統均應經模擬或操..
-
22
2020-10
了解電機振動給料機的日常維護保養事項
電機振動給料機能夠將塊狀或者顆粒狀的物料從貯料倉或漏斗中均勻連續或定量地給到受料裝置中去。
熱銷產品
-
DZSF直線振動篩
DZSF系列直線振動篩是由篩箱、篩框、振動電機、減振系統及座架等組成。直線振動篩是用振動電機作為振動源,固定在篩箱上兩臺相同的振動電機做相反方向自同步旋轉,振動電機所帶的偏心塊在旋轉時各個瞬間位置所產生的離心力之分力沿拋擲方向作往復運動
立即了解?DZSF直線振動篩
-
CZ系列倉壁振動器
-
ZG系列慣性振動器
-
GZ系列電磁振動給料機
GZ系列電磁振動給料機在生產流程中,用于把塊狀、顆粒狀、粉狀物料從貯料倉或漏斗中定量、均勻、連續地給到受料裝置中去。
立即了解?GZ系列電磁振動給料機